Выбрать планировку квартиры
а входа нет в принципе?
отличная квартира, но где входная дверь?
или пока не прорублена?
или пока не прорублена?
через лоджию видимо 

Исправил планировку Входная дверь снизу )
да лох какой-то чертил
особенно радуют наклонные стрелки на лоджии
особенно радуют наклонные стрелки на лоджии
соседи добрые?
соседи добрые?Ни разу не видел. Но у соседа трешка за 120 с чем-то метров, если не ошибаюсь )
Отлично, санузел и кухню с ним делаешь совмещённой.
И только наше дизайнерское агенство Рублёвка плюс предлагает
7-ми комнатную квартиру с двумя длинными коридорами и зимним садом.

И только наше дизайнерское агенство Рублёвка плюс предлагает
7-ми комнатную квартиру с двумя длинными коридорами и зимним садом.

Санузел с душем можно на лоджии, в каждой комнате кухня своя. Можно тогда еще +2 комнаты сделать )
Этот вариант уже прорабатывается
Этот вариант уже прорабатывается
Зачем борделю в каждой комнате кухня!?
Главное отдельную комнату для мадам и охраны сделайте и в углу автомат по продаже презервативов установите.
Главное отдельную комнату для мадам и охраны сделайте и в углу автомат по продаже презервативов установите.
Должна быть возможность разместить где-то еще двоихНа постоянной основе?
Я бы гостевой сделала первую комнату. Комната для семьи с выходом на лоджию. Последняя отделена от комнаты аквариумом.

Компьютерный стол я бы запихнула на кухню в верхний левый угол.
Если с вами будут жить другие люди, то лучше сделать раздельно ванную комнату и туалет. Либо гостевой туалет с душевой кабинкой.
Непонятный прямоугольник 150 см - это шахта или бомбоубежище?
Непонятный прямоугольник 150 см - это шахта или бомбоубежище?написано же, вент шахта.
Если там сделать дверь, то внутри можно разместить хоть сотню человек.
Не увидела.
Я бы сделала хорошую вентиляцию по всей квартире.
Но бомбоубежище реально круто.
Я бы сделала хорошую вентиляцию по всей квартире.
Но бомбоубежище реально круто.

Хочется услышать общие идеи, типа вот это сделать так-то, так как это практичнее и так далее.Лишние дыры в стенах можно юзать для того чтобы делать шкаф, расположенный по одну сторону, но имеющий доступ с другой. Возможно даже только с другой. В данной ситуации, возможно будет целесообразным для этого заюзать проём 1050: сделать там шкаф для курток в форме прямоугольника со скруглённым верхним левым углом. Вход в него из прихожей (которой толком нет). Можно и из комнаты тоже, если не важна шумоизоляция с коридором. Ничего плохого в том, что вход в комнату будет из кухни, не вижу.

в эту планировку явно напрашивается гардеробная, хранить там сноуборды, гладильную доску и всю одежду
это позволит минимизировать количество мебели в комнате, которая будет совмещать в себе и гостиную, и спальню
также можно отделить спальное место от жилой зоны

это позволит минимизировать количество мебели в комнате, которая будет совмещать в себе и гостиную, и спальню
также можно отделить спальное место от жилой зоны

Гостевой диван - в кухню, однозначно. Советами заебут иначе и чтобы гостями себя чувствовали
Стол с компом - в эркер, чтобы Кош не стучал по ночам клавиатурой над ухом спящей жены
Стол с компом - в эркер, чтобы Кош не стучал по ночам клавиатурой над ухом спящей жены
кухня мелковата, но можно сделать, как делает мой папа при похожей планировке:
он просто сдвигает стол в угол, а на пол стелит надувной матрас
раньше у них там диван стоял, но диван теперь в комнате, так как гостей уж очень много наезжает
он просто сдвигает стол в угол, а на пол стелит надувной матрас
раньше у них там диван стоял, но диван теперь в комнате, так как гостей уж очень много наезжает
Есть вариант поиграться с двухэтажностью - сделать гардероб, заканчивающийся на высоте где-то 1,6-1,8 м, а на его "крыше" оборудовать спальную нишу. Но это требует довольно высоких потолков.
причем вход в Гардероб должен быть из коридора, а ниша смотреть в комнату
причем вход в Гардероб должен быть из коридора, а ниша смотреть в комнату
в эту планировку явно напрашивается гардеробнаяШкаф с потайной дверью в задней стенке (и к тому же около двери чтобы любовник мог по-быстрому съебать, пока муж через кухню топает.

диван на кухню и небольшой на балкон
комнату меньше не делайте, лучше пусть будет большая )
санузер обязательно раздельный
в ванной, если она реально 2500, ванную 150 не делайте, лучше поставить ванную вдоль одной стены, поставить перегородку, и в оставшееся место впихнуть стиралку или мойдодыр
я бы вообще угловую ванну поставила бы, если бы деньги были
стиралку на кухню не ставьте
комнату меньше не делайте, лучше пусть будет большая )
санузер обязательно раздельный
в ванной, если она реально 2500, ванную 150 не делайте, лучше поставить ванную вдоль одной стены, поставить перегородку, и в оставшееся место впихнуть стиралку или мойдодыр
я бы вообще угловую ванну поставила бы, если бы деньги были
стиралку на кухню не ставьте
я бы вообще угловую ванну поставила бы, если бы деньги были
угловая ванна с пузыриками и всяким барахлом стоит 7000.
конечно китай но чёрт её знает чем он хуже.
угловая ванна с пузыриками и всяким барахлом стоит 7000.
конечно китай но чёрт её знает чем он хуже.
А высота потолка какая?
пузырики из китая это на любителя, мне кажется, такие ванные недолговечны
вход в комнату прямо у входной двери? может перенести? но тогда получится длинный коридор.
Уж точно не делай студию. Ставь межкомнатные двери и гардеробную.
ps: Не забудь про кондиционер.

ps: Не забудь про кондиционер.


Собственно вопрос - какой именно ремонт посоветуете делать? Хочется услышать общие идеи, типа вот это сделать так-то, так как это практичнее и так далее.
А высота потолка какая?3 метра
Ну если совсем голые стены:
Советую делать побольше розеток и вообще положить хорошую проводку, насколько дом позволяет конечно, запланировать (а лучше сразу развести до розеток) витую пару и телевизионный кабель, провести свет на балкон. Подумай еще над тем, где тебе будет нужна вода (ну там стиральная машина и т.п. можно поставить гребенку с парой заглушек. Проверь уровнем или тупо водичкой, отвесом , насколько ровные пол и стены. Если стандартные батареи гавно, то лучше их поменять, пока ремонт не сделан. Счетчики на воду и свет лучше тоже ставить как можно раньше.
Советую делать побольше розеток и вообще положить хорошую проводку, насколько дом позволяет конечно, запланировать (а лучше сразу развести до розеток) витую пару и телевизионный кабель, провести свет на балкон. Подумай еще над тем, где тебе будет нужна вода (ну там стиральная машина и т.п. можно поставить гребенку с парой заглушек. Проверь уровнем или тупо водичкой, отвесом , насколько ровные пол и стены. Если стандартные батареи гавно, то лучше их поменять, пока ремонт не сделан. Счетчики на воду и свет лучше тоже ставить как можно раньше.
3 метракруто
а это где такие строят и кто застройщик?
крутоа это где такие строят и кто застройщик?Застройщик ГлавМосстрой, дом недалеко от ФДС
Застройщик ГлавМосстрой, дом недалеко от ФДСууу
а я думал застройщик Сталин, дом недалеко от Ленинского проспекта

потолки 3 метра я только в сталинских домах видел .... так обычно 2.70 ... в лучшем случае 2,80
а я за объединение туалета и ванны - можно здоровую ванну впихнуть и будет выглядеть очень свободно, а если кто-то скажет про проблемы с посрать - дак все равно это проблематично, когда ванна занята)
еще я бы урезал коридор - или для увеличения кухни, или для небольшой гардеробной
ну и лоджия в однушке должна превратиться в часть теплой комнаты - гости то пофиг, разместятся где-нибудь, а вот с малышом нужно будет мутить какое-либо разделение на 2 комнаты, правда плохо, если окон акромя лоджии в комнате нет
еще я бы урезал коридор - или для увеличения кухни, или для небольшой гардеробной
ну и лоджия в однушке должна превратиться в часть теплой комнаты - гости то пофиг, разместятся где-нибудь, а вот с малышом нужно будет мутить какое-либо разделение на 2 комнаты, правда плохо, если окон акромя лоджии в комнате нет
В хрущёвках примерно с такой же планировкой этот малюсенький коридорчик совмещали с ванной ,
но тогда вход в кухню будет только через комнату

или так

но тогда вход в кухню будет только через комнату

или так

Кош, если ты планируешь в этой квартире обзавестись еще и киндером, то ты должен понимать, что место, где вы будете жить (в то время, когда киндер спит) - это кухня. Т.е. твоя однокомнатная квартира должна стать двухкомнатной.
Делай на кухню дверь обязательно, сделай так, чтобы свет в кухне можно было включать и выключать находясь в ней, а не выходя для этого в коридор - это будет очень удобно для гостей, которые у тебя будут останавливаться. Запланируй там место для дивана - как минимум на нем будут спать твои родители и, как вариант, возможно пару раз в беспокойные ночи (с киндером) и перед важными переговорами на этом диване будешь спать ты сам.
Также пойми, что долгие зимние/летние вечера ты со своей супругой будете проводить на кухне. Соответственно на кухне должен быть кондей, телевизор и все что вам нужно для того, чтобы на кухне жить.
Ни в коем случае не ломай стенку между комнатой и кухней - это, конечно, дизайнерски изыскано, но реально когда гости через твою комнату бегают в туалет - это нифига не прикольно.
А вот гардеробную действительно надо сделать побольше: в однушке обычно мало места и разбросанные вещи сразу создают ощущение бардака. Лучше делать бардак в одном замкнутом пространстве. Опять же вход в гардеробную лучше делать не из комнаты, дабы лишний раз не тревожить малыша, когда он спит.
На балконе обязательно свет, обязательно электрическая розетка (чтобы подключить радионяню или дрель и не открывать при этом дверь в комнату).
По поводу туалета - спорный вопрос объединять его с ванной или нет. Я объединял просто для того, чтобы по утру дверьми не хлопать - запереться и сделать все свои дела
Ну еще у меня туалет был несколько убогий по форме и размерам.
Делай на кухню дверь обязательно, сделай так, чтобы свет в кухне можно было включать и выключать находясь в ней, а не выходя для этого в коридор - это будет очень удобно для гостей, которые у тебя будут останавливаться. Запланируй там место для дивана - как минимум на нем будут спать твои родители и, как вариант, возможно пару раз в беспокойные ночи (с киндером) и перед важными переговорами на этом диване будешь спать ты сам.
Также пойми, что долгие зимние/летние вечера ты со своей супругой будете проводить на кухне. Соответственно на кухне должен быть кондей, телевизор и все что вам нужно для того, чтобы на кухне жить.
Ни в коем случае не ломай стенку между комнатой и кухней - это, конечно, дизайнерски изыскано, но реально когда гости через твою комнату бегают в туалет - это нифига не прикольно.
А вот гардеробную действительно надо сделать побольше: в однушке обычно мало места и разбросанные вещи сразу создают ощущение бардака. Лучше делать бардак в одном замкнутом пространстве. Опять же вход в гардеробную лучше делать не из комнаты, дабы лишний раз не тревожить малыша, когда он спит.
На балконе обязательно свет, обязательно электрическая розетка (чтобы подключить радионяню или дрель и не открывать при этом дверь в комнату).
По поводу туалета - спорный вопрос объединять его с ванной или нет. Я объединял просто для того, чтобы по утру дверьми не хлопать - запереться и сделать все свои дела
Ну еще у меня туалет был несколько убогий по форме и размерам.ты чего? в московских новостройках среднего класса и выше давно уже делают потолки больше трех метров.
3 метраЕсли потолки высокие, то можно сделать кровать-чердак, а под ней рабочее место.
В хрущёвках примерно с такой же планировкой этот малюсенький коридорчик совмещали с ваннойесли что — не забудьте об условиях перепланировки, затрагивающей изменение водных мест: вроде как там необходим специальный гидроизолирующий слой. Короче взботните нормы на эту тему, они неочевидные какие-то
даже в гзшный сортир можно впихнуть раковинуте, кто ответственно относятся к выбору комнаты в ГЗ, имеют возможность хранить в сортире велосипед или кровать, например. Пылесос в углу такого сортира смотрится сиротливо. Также в удачных блоках имеются кладовки.
Застройщик ГлавМосстрой, дом недалеко от ФДСУ меня очень похожая квартира, застройщик тот же, район разве что другой.
Что сделал - утеплил балкон и убрал окна, теперь это часть квартиры, стало гораздо светлее и визуально больше места. К тому же туда влез стеллаж.
Для гостей поставил диван на кухню. Один из соседей (семейная пара с ребенком сделал на кухне спальню, а собственно кухню перенес в зал, правда это геморрой с поднятием полов/согласованием и тд.
В целом у меня получилось очень похоже на картинку Гульки

сделал на кухне спальню, а собственно кухню перенес в зал,Была идея сделать такую перепланировку, но больно уж сложная... гидроизоляция, тащить вытежку через пол квартиры

rishar
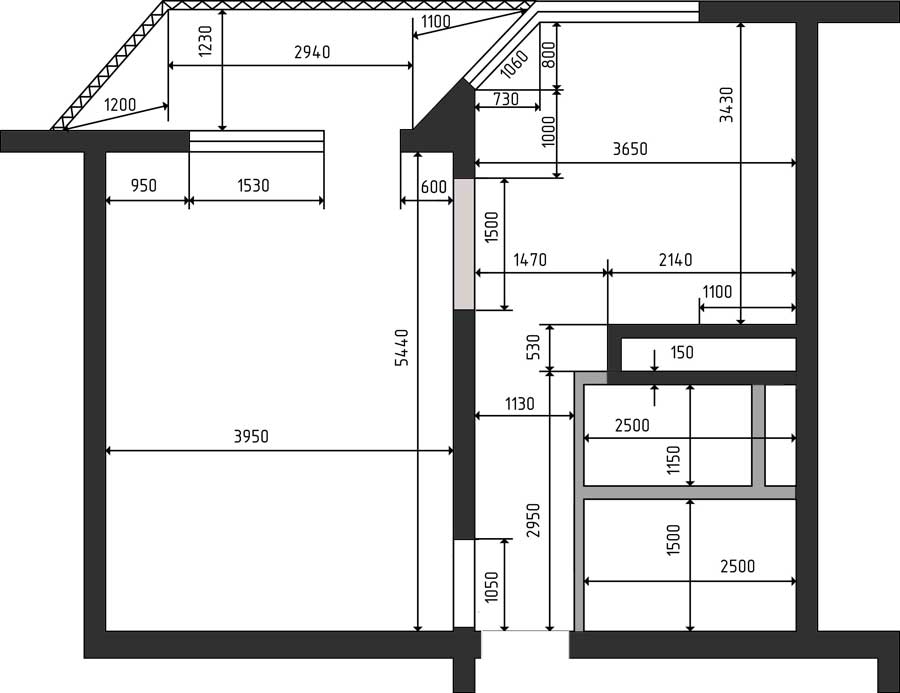
Дано: Есть отдушка в новостройке. Ремонта нет - голые стены. Планировка ниже. Темным выделены капитальные стены (посредине кухни темный прямоугольник - это вентиляция и трубы серым выделены не капитальные стены, которые можно сносить. светлая часть в стене на кухне - тоже не капитальная стена, т.е. там можно прорубить ход!Общая площадь (включая лоджию) около 49 метров.
Собственно вопрос - какой именно ремонт посоветуете делать? Хочется услышать общие идеи, типа вот это сделать так-то, так как это практичнее и так далее.
Из финтов: семья, 2 человека. Пока без ребенка. Должна быть возможность разместить где-то еще двоих, так что нужен дополнительный диван.