Планировка квартиры
Хороший план, все размеры указаны. Не то что старые БТИшки
Ага, только это не БТИшка.
планировка отстой
я бы не стала совсем уж все стены сносить. Точно бы отгородила отсек спальня\санузел справа, только дверь бы сделала не там, где вход в спальню, а чуть левее по коридору, там где санузел начинается. Остальное можно всё без дверей оставлять.
Если планируете детей, то для них тоже надо отдельную, отгороженную комнату будет делать, так что мне кажется, что нет смысла убирать все стены, чтобы потом опять их возводить.
А вот с нижней частью квартиры уже можно было бы поизвращаться, убрать часть стен, или сделать их нестандартной формы, или как-то интересно зонировать помещение.
ну вот условно говорят вот так
Если планируете детей, то для них тоже надо отдельную, отгороженную комнату будет делать, так что мне кажется, что нет смысла убирать все стены, чтобы потом опять их возводить.
А вот с нижней частью квартиры уже можно было бы поизвращаться, убрать часть стен, или сделать их нестандартной формы, или как-то интересно зонировать помещение.
ну вот условно говорят вот так
вынужден согласиться. так что нужно с этим что-то делать.
планировка отстой
имеет смысл ознакомиться с правилами по перепланировки в вашем "замкадье"
особенно относительно переноса "мокрых" зон: кухня и санузлы
обычно их перенос/расширение возможно только над нежилыми площадями соседей снизу
особенно относительно переноса "мокрых" зон: кухня и санузлы
обычно их перенос/расширение возможно только над нежилыми площадями соседей снизу
Ага, я тоже думал над каким-то таким вариантом, но в него сразу просится какое-то дополнительное зонирование, типа сделать кладовку в прихожей и кинозал - см. вариант 3.
я бы не стала совсем уж все стены сносить. Точно бы отгородила отсек спальня\санузел справа, только дверь бы сделала не там, где вход в спальню, а чуть левее по коридору, там где санузел начинается. Остальное можно всё без дверей оставлять.
Если планируете детей, то для них тоже надо отдельную, отгороженную комнату будет делать, так что мне кажется, что нет смысла убирать все стены, чтобы потом опять их возводить.
А вот с нижней частью квартиры уже можно было бы поизвращаться, убрать часть стен, или сделать их нестандартной формы, или как-то интересно зонировать помещение.
ну вот условно говорят вот так
А вот в базовом варианте мне хочется сделать три комнаты, но при этом максимально расширить кухню и увеличить санузел при входе так, что бы в него влез не только умывальник, но и душевая кабина.



Ну вот вариант 3 мне кажется интереснее всего. Только не понимаю, зачем делать еще какую-то кладовку в прихожей, когда есть отличное место для гардеробной возле спальни.
Кухню, кстати, при таком раскладе можно забабахать отличную, с барной стойкой, которая будет отделять саму кухню от гостиной
Кухню, кстати, при таком раскладе можно забабахать отличную, с барной стойкой, которая будет отделять саму кухню от гостиной
Архитектору руки оторвать. Но мне кажется что вот как то так! Можно конечно еще подумать (это за 15 мин сделано). Сейчас посмотрел и подумал, что зону кухни и гостинно, можно поменять местами, но уменьшить гардероб и выход из детской перенести в правый угол. Вы бы сказали какие у вас пожелания к плану. Где кухня, какая площадь кухни или спальни, как к аркам относитесь, ну т.п. Посоветовать могу материалы покупать в Леруа Мерлен.


А как на кухне готовить без воды?
Теоретически, можно наверное до верхнего стояка попробовать добраться при таком варианте
За идею поменять местами ванную и кладовую у верхнего стояка спасибо большое - сам бы не додумался. 

Много заморочек. Проще кухню сделать внизу (вместо детской) и 2 жилые комнаты рядом с туалетом.
Если хочется простора, то санузел делать совмещенным. Если учитывать, что будет проживать несколько человек, то делать раздельным.
Кладовая с окном - это жесть.
Если хочется простора, то санузел делать совмещенным. Если учитывать, что будет проживать несколько человек, то делать раздельным.
Кладовая с окном - это жесть.
Кладовая с окном - это жесть.?
похоже, что посчитала часть несущей стены за окно 

Как минимум, нестабильные температурные условия смущают. Продукты хранят в сухом и темном месте. 

имей в виду, что для переноса мокрых зон нужно отдельное разрешение и некоторые дополнительные действия
кухни, ванные и туалеты — это мокрые зоны, если не хочется затрахаться, согласовывая проект, или затрахаться, продавая квартиру в будущем, мокрые зоны лучше не переносить
при составлении планировки рекомендую подумать о гардеробных комнатах, это на самом деле просто передовая технология по сравнению с тем, к чему мы привыкли из советских времен: позволяет полностью избавиться от мебели и лишних вещей в комнатах (особенно для детской и спальни актуально)
кухни, ванные и туалеты — это мокрые зоны, если не хочется затрахаться, согласовывая проект, или затрахаться, продавая квартиру в будущем, мокрые зоны лучше не переносить
при составлении планировки рекомендую подумать о гардеробных комнатах, это на самом деле просто передовая технология по сравнению с тем, к чему мы привыкли из советских времен: позволяет полностью избавиться от мебели и лишних вещей в комнатах (особенно для детской и спальни актуально)
А плётку где в спальне хранить, если мебели нет?
где-где...
кстати, при выборе кровати стоит обратить внимание на кровати с ящиками 

Гадеробные - хорошая идея. Какого размера нужно планировать под них закуток? Вот, к примеру, 1600 на 1200 мм подходящая ниша или маловато будет?
Ещё меня очень интересует два вопроса:
1. Какого размера нужно закладывать проёмы под двери, при условии, что размер двери будет 800 мм межкомнатной и 700 мм для туалетов и ванных комнат?
2. Какого размера нужно планировать корридоры. Вот, к примеру, если сделать ванную так как мне нравится, то корридор до правой комнаты получается всего 870 мм - это не малова-то?
3. Какое расстояние нужно оставлять с обоих сторон от унитаза, что бы его можно было комфортно использовать. На вскидку это где-то от 150 до 300 мм, но может есть какой-то стандарт?
Ещё меня очень интересует два вопроса:
1. Какого размера нужно закладывать проёмы под двери, при условии, что размер двери будет 800 мм межкомнатной и 700 мм для туалетов и ванных комнат?
2. Какого размера нужно планировать корридоры. Вот, к примеру, если сделать ванную так как мне нравится, то корридор до правой комнаты получается всего 870 мм - это не малова-то?
3. Какое расстояние нужно оставлять с обоих сторон от унитаза, что бы его можно было комфортно использовать. На вскидку это где-то от 150 до 300 мм, но может есть какой-то стандарт?
А вот такой вариант не рассматриваешь?

вот такой вариант с гардеробными получается у меня.
Предлагаешь поставить морозильную установку на входе и огродить всё сендвичпанелями? 

коляски, санки, велосипеды предполагается хранить в квартире?
если да, то на входе надо сделать очень широко
если нет, то тоже надо — удобнее толпой обуваться и одеваться
1805 — это очень мало
если да, то на входе надо сделать очень широко
если нет, то тоже надо — удобнее толпой обуваться и одеваться
1805 — это очень мало
какая-то непонятная у тебя тяга к коридорам: зачем делать закуток перед входом в комнаты по левой стороне?
и вообще, если комната рядом с кухней планируется как гостинная, то есть это публичная зона квартиры, то и вход в нее должен быть рядом со входом в дом, стенку вообще можно не ставить, соответственно и гардеробная в этой комнате не нужна
и вообще, если комната рядом с кухней планируется как гостинная, то есть это публичная зона квартиры, то и вход в нее должен быть рядом со входом в дом, стенку вообще можно не ставить, соответственно и гардеробная в этой комнате не нужна
офигеть какой хороший, наверное чтобы его разложить квартиры мало

вообще-то он электронный и масштаб измеряется в каких-нить единицах размерности dpi
поэтому писать 1:1 вообще некорректно
поэтому писать 1:1 вообще некорректно
В этом варианте комната рядом с кухней планировалась как третья комната, поэтому я постарался делать там и гардеробную и выход в сторону большого санузла. Таким образом прихожая и кухня находятся в одной части квартиры, а жилая часть в другой.
В том варианте, где комната рядом с кухней является гостиной проще сделать сразу гостиную объединённую с кухней и не городить никаких лишних стен.
В том варианте, где комната рядом с кухней является гостиной проще сделать сразу гостиную объединённую с кухней и не городить никаких лишних стен.
Для справки: план походу нарисован в Автокад и там по идеалогии программы рисуется все 1 к 1, а потом с помощью листов вывода задается масштаб (обычно 1:100).
Проем +10 см к полотну. Стандартные размеры полотен: кухня - 70см, туалет и ванная - 60см, комнаты - 80см. Гардеробную тоже 60см можно сделать. Высота полотна 200см
2. Коридор точно более метра. Иначе тесновато будет.
3. Размер туалета в обычной панелке 100см*120см
2. Коридор точно более метра. Иначе тесновато будет.
3. Размер туалета в обычной панелке 100см*120см
Спасибо, Игорь. 
У меня родилась мысль с учётом того, что эркер выходит на юг и эта комната является наиболее привлекательной для гостиной - сделать там гостиную, при этом сделать три спальни с гардеробными и небольшую площадь в нише выделить под кухню.
При этом мокрые зоны в моей квартире не выйдут за рамки мокрых зон в квартире ниже. Проблем только в том, что нижняя спальня будет находиться под кухней соседей сверху - риски затопления.
Ещё подумал, что было бы правильно сделать вход в нижний санузел со стороны спален, а не со стороны коридора.


У меня родилась мысль с учётом того, что эркер выходит на юг и эта комната является наиболее привлекательной для гостиной - сделать там гостиную, при этом сделать три спальни с гардеробными и небольшую площадь в нише выделить под кухню.
При этом мокрые зоны в моей квартире не выйдут за рамки мокрых зон в квартире ниже. Проблем только в том, что нижняя спальня будет находиться под кухней соседей сверху - риски затопления.
Ещё подумал, что было бы правильно сделать вход в нижний санузел со стороны спален, а не со стороны коридора.

Что-то с планом ты намудрил.
Попробуй мебель расставь: технику, кровати, диваны, холодильник, стиралку, варочную панель, духовой шкаф, мойку, обеденный стол и т.д.
Попробуй мебель расставь: технику, кровати, диваны, холодильник, стиралку, варочную панель, духовой шкаф, мойку, обеденный стол и т.д.
Вот смотрю, смотрю, не могу понять, что это такое?


Это вентилляционный короб
судя по плану у тебя ГЗ-болезнь, стремление к маленьким "уютненьким" комнатушкам
Может быть ты и прав. 

Не ругайтесь,я тут в пэинте нарисовал)
1)По-моему гостинная должна быть большой!
2)и ее можно обьединить с кухней, либо поставить какую нибудь перегородку(барную стойку или что там напредлогали уже);
3)сделать при входе, как уже сказали, WC для гостей;
4)второе "мокрое" место можно сделать: а)WC и большой гардероб, б)кладовую-WC-гардероб

1)По-моему гостинная должна быть большой!
2)и ее можно обьединить с кухней, либо поставить какую нибудь перегородку(барную стойку или что там напредлогали уже);
3)сделать при входе, как уже сказали, WC для гостей;
4)второе "мокрое" место можно сделать: а)WC и большой гардероб, б)кладовую-WC-гардероб

кухня без окон - это смерть сразу ) либо тебя женщина за это убьет через год жизни в такой квартире, либо если сам готовишь - то через год повесишься )
Если посмотреть какие варианты перепланировок в подобных квартирах как правило предлагаются, то видно, что большинство из них имеет одну и ту же идею:
1. Сделать гостиную соединённую с кухней,
2. Сделать выход в кухню из гостиной,
3. Коридор который вел в кухню сделать частью ванной и получить большую ванную комнату,
4. Если есть санузел рядом со спальнями, то сделать там небольшой коридор и таким образом разделить квартиру на жилую тусовочную части.
Некоторые подобные варианты на www.ivd.ru:
http://www.ivd.ru/rebuild.xgi?id=247
http://www.ivd.ru/rebuild.xgi?id=309
http://www.ivd.ru/rebuild.xgi?id=826
http://www.ivd.ru/rebuild.xgi?id=650
http://www.ivd.ru/rebuild.xgi?id=1407
http://www.ivd.ru/rebuild.xgi?id=155
http://www.ivd.ru/rebuild.xgi?id=286
http://www.ivd.ru/rebuild.xgi?id=263
http://www.ivd.ru/rebuild.xgi?id=299
http://www.ivd.ru/rebuild.xgi?id=386
http://www.ivd.ru/rebuild.xgi?id=681
http://www.ivd.ru/rebuild.xgi?id=1016
http://www.ivd.ru/rebuild.xgi?id=1172
1. Сделать гостиную соединённую с кухней,
2. Сделать выход в кухню из гостиной,
3. Коридор который вел в кухню сделать частью ванной и получить большую ванную комнату,
4. Если есть санузел рядом со спальнями, то сделать там небольшой коридор и таким образом разделить квартиру на жилую тусовочную части.
Некоторые подобные варианты на www.ivd.ru:
http://www.ivd.ru/rebuild.xgi?id=247
http://www.ivd.ru/rebuild.xgi?id=309
http://www.ivd.ru/rebuild.xgi?id=826
http://www.ivd.ru/rebuild.xgi?id=650
http://www.ivd.ru/rebuild.xgi?id=1407
http://www.ivd.ru/rebuild.xgi?id=155
http://www.ivd.ru/rebuild.xgi?id=286
http://www.ivd.ru/rebuild.xgi?id=263
http://www.ivd.ru/rebuild.xgi?id=299
http://www.ivd.ru/rebuild.xgi?id=386
http://www.ivd.ru/rebuild.xgi?id=681
http://www.ivd.ru/rebuild.xgi?id=1016
http://www.ivd.ru/rebuild.xgi?id=1172
кухня без окон - это смерть сразу ) либо тебя женщина за это убьет через год жизни в такой квартире, либо если сам готовишь - то через год повесишься )Всё нормально - если делать кухню именно как кухню (аля кухонный уголок а кушать в другом месте, например, в той же смежной гостинной.
я специально сделал акцент на готовку. готовить днем при свете лампы все-таки унылей, чем при свете солнца 

нельзя увеличивать и переносить санузлы (ну в смысле увеличить за счет коридора можно, но задолбаетесь согласовывать в бти)
нельзя переносить кухню в гостиную (около нее обязательно должен быть большой вентиляционный короб)
максимум что я бы сделала на данной планировке, это объединила кухню с гостиной, и сделала бы выход в гардероб из комнаты
нельзя переносить кухню в гостиную (около нее обязательно должен быть большой вентиляционный короб)
максимум что я бы сделала на данной планировке, это объединила кухню с гостиной, и сделала бы выход в гардероб из комнаты
пусть лучше выход из гардероба будет в коридор имхо
я бы вообще объединила бы этот гардероб с комнатой и сделала бы там большой шкаф-купе )
ну в смысле увеличить за счет коридора можно, но задолбаетесь согласовывать в бтирасскажи о процедуре?
нельзя увеличивать и переносить санузлы (ну в смысле увеличить за счет коридора можно, но задолбаетесь согласовывать в бти)один знакомый увеличил размер ванной комнаты и снес несколько не несущих стен
нельзя переносить кухню в гостиную (около нее обязательно должен быть большой вентиляционный короб)
по его словам это может иметь последствия только в одном случае - если будет создана комиссия, которая эту перепланировку зафиксирует
НО
комиссию можно не пускать в квартиру и что бы попасть внутрь им нужно решение суда, а суд может вынести такое решение только на основании заключения комиссии

Если он не будет продавать свою квартиру, то все нормально
а вот продать прямо так не сможет, и потом у наследников могут возникнуть проблемы
если просто снос или перенос ненесущих стен, то можно нарисовать план от руки и идти с ним к главному технику в Управляющей компании, он согласует
а вот если увеличение санузла за счет коридора (и только за счет него, за счет других помещений вообще нельзя увеличивать то нужно обращаться к архитекторской конторе, она будет рисовать план специальный и с ним потом идти согласовывать
у меня вот перепланировка не согласована и увеличение туалета за счет кухни, я даже боюсь начинать что-либо согласовывать
а вот продать прямо так не сможет, и потом у наследников могут возникнуть проблемы
если просто снос или перенос ненесущих стен, то можно нарисовать план от руки и идти с ним к главному технику в Управляющей компании, он согласует
а вот если увеличение санузла за счет коридора (и только за счет него, за счет других помещений вообще нельзя увеличивать то нужно обращаться к архитекторской конторе, она будет рисовать план специальный и с ним потом идти согласовывать
у меня вот перепланировка не согласована и увеличение туалета за счет кухни, я даже боюсь начинать что-либо согласовывать
один знакомый увеличил размер ванной комнаты и снес несколько не несущих стенты можешь менять планировки сколько угодно. твои проблемы могут возникнуть только если у соседей снизу будет плесень или мокрый потолок ну и главное при продаже тебе надо будет вернуть стены или идти согласовывать в БТИ твои новые стены
по его словам это может иметь последствия только в одном случае - если будет создана комиссия, которая эту перепланировку зафиксирует
НО
комиссию можно не пускать в квартиру и что бы попасть внутрь им нужно решение суда, а суд может вынести такое решение только на основании заключения комиссии
чтобы не было плесени, гидроизоляция есть.
к тому же, если на несколько см увеличить ванну за счет коридора, то БТИ глаза на то закроет, потому как всегда можно сослаться, что так и было ну или, что толщину не несущих стен уменьшили
к тому же, если на несколько см увеличить ванну за счет коридора, то БТИ глаза на то закроет, потому как всегда можно сослаться, что так и было ну или, что толщину не несущих стен уменьшили
Всё нормально - если делать кухню именно как кухню (аля кухонный уголок а кушать в другом месте, например, в той же смежной гостиннойа гостей куда?
Гости в квартире бывают, как правило, гораздо реже хозяев. Думаю, что логичней делать более удобно для хозяев, чем для гостей.
Гости в квартире бывают, как правило, гораздо реже хозяев. Думаю, что логичней делать более удобно для хозяев, чем для гостей.да понятно.
мне просто больше нравится даже гостей принимать на кухне, чем таскаться с тарелочками, не говоря уж о том, чтобы самим есть.
Тогда надо делать большую кухню-гостинную, где и готовить и гостей принимать.
Диванчик туда. Если вдруг что, то и заночевать кто-то из гостей может.
Диванчик туда. Если вдруг что, то и заночевать кто-то из гостей может.
мне просто больше нравится даже гостей принимать на кухне, чем таскаться с тарелочками, не говоря уж о том, чтобы самим есть.Это вопрос, скорее, привычки. Даже у нас в деревенском доме в Беларуси после ремонта и выноса кухни в пристройку - чаще кушать стали в гостинной (хотя чай частенько пили и на кухне). Т.е. появилось мнение, что кухня - это место для приготовления пищи, а не жилая площадь, на которой проводишь всё время.
Это вопрос, скорее, привычкида.
а еще мы ленивы и не любим нерациональные действия.
к коим я отношу то, что нужно переносить еду-посуду туда-сюда и риск повешенного загрязнения не только кухни, но еще и комнаты, если там есть.
исключение - если уж совсем толпа гостей придет.
выноса кухни в пристройку - чаще кушать стали в гостиннойприслуга не заебалась посуду и яства носить туда-сюда?
да.Еще зависит от самой кухни и её размеров: там готовишь, куча всего стоит на столе, или там кастрюльки с первым, там второе, там компот, там тарелочки с закусками, там доска разделочная - порой раз, даже если заняты только рабочие поверхности, а в процессе готовки вся раковина завалилась посудой, приятнее поужинать в специально отведенной для этого гостиной, которая примыкает к кухне.
а еще мы ленивы и не любим нерациональные действия.
к коим я отношу то, что нужно переносить еду-посуду туда-сюда и риск повешенного загрязнения не только кухни, но еще и комнаты, если там есть.
исключение - если уж совсем толпа гостей придет.
Еще зависит от самой кухни и её размеров: там готовишь, куча всего стоит на столе, или там кастрюльки с первым, там второе, там компот, там тарелочки с закусками, там доска разделочная - порой раз, даже если заняты только рабочие поверхности, а в процессе готовки вся раковина завалилась посудой, приятнее поужинать в специально отведенной для этого гостиной, которая примыкает к кухне.можно объединить кухню с гостиной. Может и неплохо.
вижу два минуса: запахи кухонные в гостинной
и теряется полноценная гостинная. А делать отдельно гостиную и столовую может быть несколько расточительно.
вижу два минуса: запахи кухонные в гостиннойвытяжку можно поставить
вытяжку можно поставитьимеет смысл, если кухня метров 6. А если кухня метров 10, зачем поганить комнату?
имеет смысл, если кухня метров 6. А если кухня метров 10, зачем поганить комнату?наличие вытяжки обязательно, если ты готовишь чаще одного раза в месяц
вытяжку можно поставитьвытяжка не спасает от запахов на 100% , что за наивняк
Мои мысли такие:
1 Не делать совмещенный санузел. Хотя, наверное, умилительно сидя на унитазе смотреть, как жена купает ребенка. Да и для семьи из двух человек это неудобно. Сам жил и с раздельным и совмещенным санузлом - выбор однозначно в пользу первого. На 100 м2 это вполне можно себе позволить. Как вариант - один санузел совмещенный, ещё один туалет отдельно. Хотя сомневаюсь, что тут нужно два туалета.
2 Не соединять гостиную с кухней. Так будет две полноценные комнаты в каждой из которых люди могут заниматься своими делами (слушать свою музыку, смотреть фильм, готовить, говорить по телефону) не мешая друг другу. Кайфа барной стойки я не понимаю. Ну и запахи при готовке - никакая вытяжка не спасет при соединенных комнатах. Опять же площадь позволяет разделить.
3 Кухня 10м2 это минимум, а при такой площади я бы сделал метров 15, причем в светлой левой верхней части с расчетом на большой раздвижной стол, чтобы можно было посадить человек 10. На мой взгляд кухня-столовая - лучшее место для приема гостей и общения с ними. Разделять кухню и столовую неудобно - всё время придется носить еду, тарелки туда-сюда, если, конечно, не собираешься нанимать прислугу.
4 Область с балконом: гостиная - кинозал - спальня гостей. Экран напротив балкона. Соответственно темные стены. Поскольку тут же можно и главную стереосистему поставить - лучше заглушить стены (звукопоглощающие панели). Ну и соседям/домашним меньше мешать будет. Правда придется диван посредине комнаты ставить, но другие области ещё меньше подходят для кинозала.
5 Гардеробные размещать по остаточному принципу, хотя по мне, так они вообще не нужны, когда пытаешься выиграть площадь. Сколько бы места не было в квартире под хлам - оно всё равно будет занято полностью. Поэтому лучше его выделить по минимуму, а вот на важные вещи - кухня, кинозал, детская не жалеть места.
6 Проблемы с перепланировкой при продаже сильно преувеличены. Сейчас для регистрации договора купле-продажи справка БТИ не обязательна, поэтому продать можно с любой перепланировкой. Но интересы соседей, конечно, ущемлять не стоит.
7 Осторожней с модными советами типа - гардеробная комната новый уровень комфорта, барная стойка - залог счастья семьи.
1 Не делать совмещенный санузел. Хотя, наверное, умилительно сидя на унитазе смотреть, как жена купает ребенка. Да и для семьи из двух человек это неудобно. Сам жил и с раздельным и совмещенным санузлом - выбор однозначно в пользу первого. На 100 м2 это вполне можно себе позволить. Как вариант - один санузел совмещенный, ещё один туалет отдельно. Хотя сомневаюсь, что тут нужно два туалета.
2 Не соединять гостиную с кухней. Так будет две полноценные комнаты в каждой из которых люди могут заниматься своими делами (слушать свою музыку, смотреть фильм, готовить, говорить по телефону) не мешая друг другу. Кайфа барной стойки я не понимаю. Ну и запахи при готовке - никакая вытяжка не спасет при соединенных комнатах. Опять же площадь позволяет разделить.
3 Кухня 10м2 это минимум, а при такой площади я бы сделал метров 15, причем в светлой левой верхней части с расчетом на большой раздвижной стол, чтобы можно было посадить человек 10. На мой взгляд кухня-столовая - лучшее место для приема гостей и общения с ними. Разделять кухню и столовую неудобно - всё время придется носить еду, тарелки туда-сюда, если, конечно, не собираешься нанимать прислугу.
4 Область с балконом: гостиная - кинозал - спальня гостей. Экран напротив балкона. Соответственно темные стены. Поскольку тут же можно и главную стереосистему поставить - лучше заглушить стены (звукопоглощающие панели). Ну и соседям/домашним меньше мешать будет. Правда придется диван посредине комнаты ставить, но другие области ещё меньше подходят для кинозала.
5 Гардеробные размещать по остаточному принципу, хотя по мне, так они вообще не нужны, когда пытаешься выиграть площадь. Сколько бы места не было в квартире под хлам - оно всё равно будет занято полностью. Поэтому лучше его выделить по минимуму, а вот на важные вещи - кухня, кинозал, детская не жалеть места.
6 Проблемы с перепланировкой при продаже сильно преувеличены. Сейчас для регистрации договора купле-продажи справка БТИ не обязательна, поэтому продать можно с любой перепланировкой. Но интересы соседей, конечно, ущемлять не стоит.
7 Осторожней с модными советами типа - гардеробная комната новый уровень комфорта, барная стойка - залог счастья семьи.
не знаю что такое барная стойка, а вот большой и высокий стол к которому есть доступ со всех 4-х (или хотя бы трех) сторон очень удобно если готовишь дома
ну и когда девочка-вечеринки с совместной готовкой, то вообще не заменимо
ну и когда девочка-вечеринки с совместной готовкой, то вообще не заменимо

Куче девчонок может и удобно готовить на большом столе, но одному-двум человекам комфортнее будет на специально предназначенной для этого столешнице кухонного гарнитура. Достаточно иметь сплошную рабочую поверхность метра полтора длинной. Но это уже к вопросу планировки кухни, а это отдельная тема.
Достаточно иметь сплошную рабочую поверхность метра полтора длинной.если готовить часто или не пельмени или не одному, то такой поверхности мало
опять же есть куча техники-полезняшек которые влом каждый раз убирать в шкаф
высокий стол доступный с нескольких сторон это удобно
Не соединять гостиную с кухней. Так будет две полноценные комнаты в каждой из которых люди могут заниматься своими делами[pollstart]
[polltitle=+ Сколько раз вы сожгли еду, находясь за компом, который естессно стоял не в кухне]
[polloption=ни разу]
[polloption=1 раз]
[polloption=2-5 раз]
[polloption=6-10 раз]
[polloption=более 10 раз]
[pollstop]
Имеется в виду полтора метра чистой поверхности без полезняшек только под готовку. Больше - лучше. Плюсы встроенной в гарнитур столешницы: устойчивая к высоким температурам, загрязнениям, повреждениям поверхность; идеальная горизонтальность; максимальная близость к раковине, варочной поверхности, посудомойке, посуде, освещенность.
Но верю, что кому-то психологически комфортнее готовить на столе.
Но верю, что кому-то психологически комфортнее готовить на столе.
Плюсы встроенной в гарнитур столешницы: устойчивая к высоким температурам, загрязнениям, повреждениям поверхность; идеальная горизонтальность; максимальная близость к раковине, варочной поверхности, посудомойке, посуде, освещенность.это все сомнительно
Но верю, что кому-то психологически комфортнее готовить на столе.
не все поверхности устойчивы к перечисленным воздействиям
если же взять такую дорогостоящую поверхность как часть гарнитура, то ничто не мешает ее выделить в отдельный стол или барную стойку
про близость к раковине тоже не очевидно - как рапланируешь
ну и лучше верить, лично мне все равно готовиь на столе или столешнице гарнитура, но неравнодушные точно есть
polltitle=+ Сколько раз вы сожгли еду, находясь за компом, который естессно стоял в кухне]так интереснее
Сколько раз вы сожгли еду, находясь за компом, который естессно стоял не в кухнеНи разу, благодаря нанотехнологии под названием таймер на плите.
Но верю, что кому-то психологически комфортнее готовить на столе.мне удобно. режется все на столе. но больших плюсов отдельно для этого заводить барную стойку (кроме красоты) не вижу.
Сколько раз вы сожгли еду, находясь за компом, который естессно стоял не в кухнекаким образом нахождение компа и еды в одной комнате спасло бы еду в такой ситуации?
а кухня с дверьми спасет?
у нас китайцы-соседи что-то такое готовят, что даже в холле дома стоит запах и держится по полдня
вытяжка+окошко на 5 мин открыть - для чувствительных носов спасение 
у нас китайцы-соседи что-то такое готовят, что даже в холле дома стоит запах и держится по полдня
вытяжка+окошко на 5 мин открыть - для чувствительных носов спасение 
каким образом нахождение компа и еды в одной комнате спасло бы еду в такой ситуации?звуковым и шаговым образом
Ни разу, благодаря нанотехнологии под названием таймер на плите.крутой пацан
наверное и в ГЗ не жил кстати

mamishka
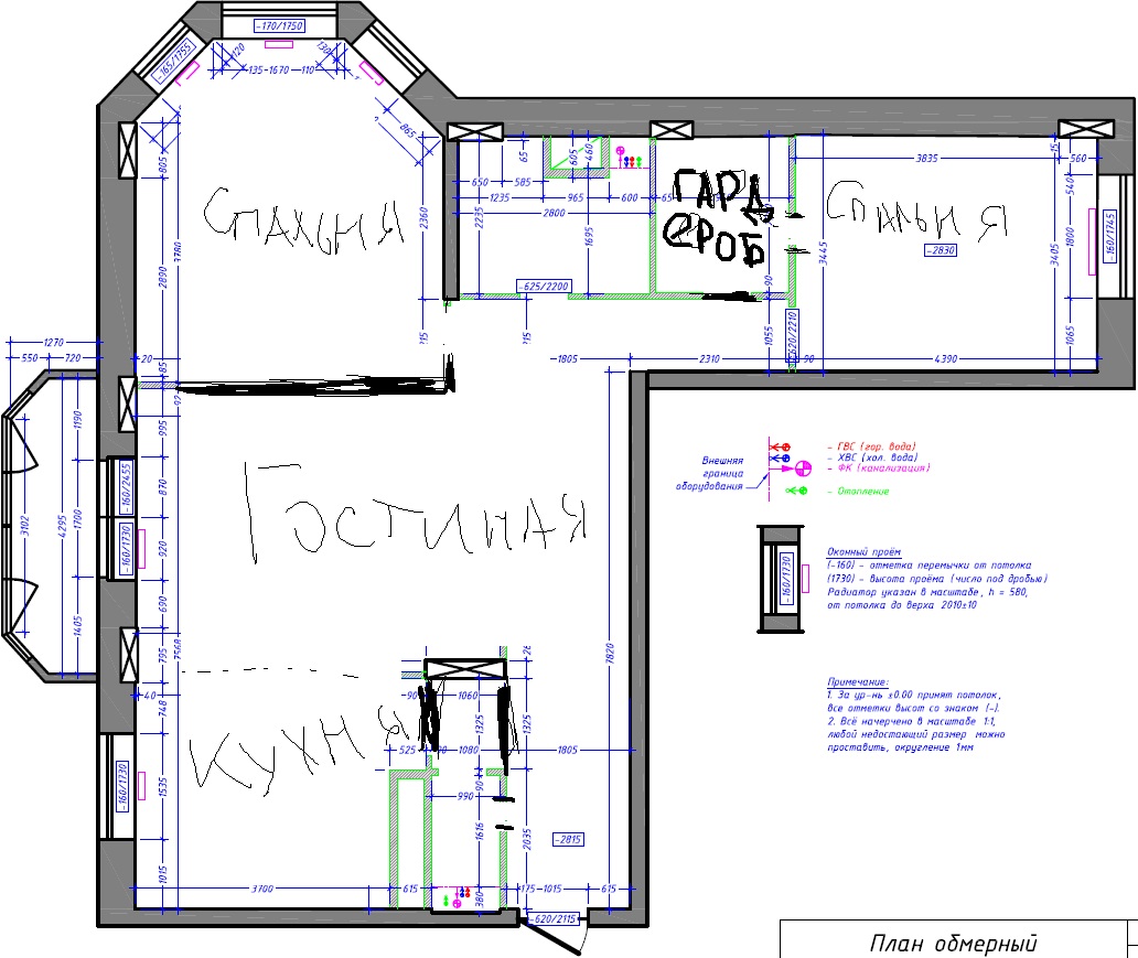
Дано - квартира в новостройке, в замкадье, недалеко от станции электрички. Подробнее:1. Ремонта нет – голые стены,
2. Планировка ниже,
3. Зеленым выделены перегородки, которые рука так и тянется снести (важно: замкнутые контуры из зеленых стен – это вентиляционные короба
4. Серые стены и белые прямоугольники с перекрестьем – это несущие констукции, которые трогать никак нельзя,
5. Ремонт скоро собираюсь начать делать.
Планируемое использование:
1. Проживание семьи из двух человек,
2. Возможно в последствии добавятся дети,
3. Если кто-то приедет в гости, то скорее всего останется, так как ехать обратно может быть уже поздно,
Вопрос, как лучше спланировать внутреннее пространство? Может у кого-то есть иеди о том, что и как лучше сделать, на что обратить внимание, что было бы сделать практичнее и правильнее.
П.С. Общая площадь (за вычетом капитальных стен и лоджии) 103,5 метра.